Описание
Детайли
-
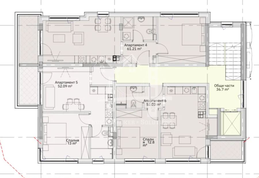
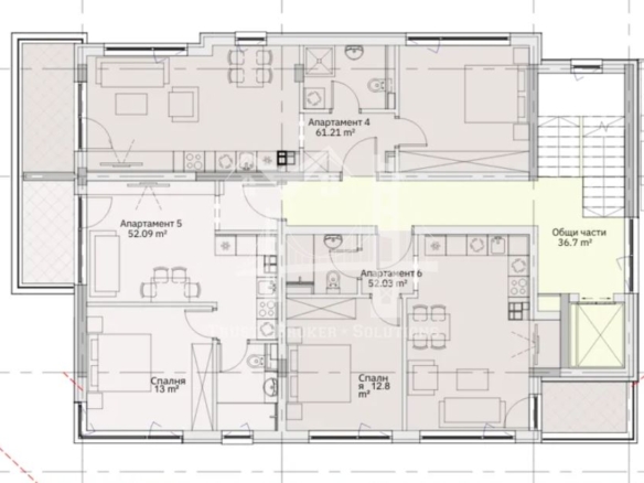
№ на имота 1032
-
Цена 119,900€
-
Квадратура 75 m²
-
Спалня 1
-
Стаи 2
-
Год. на строеж 2026
-
Вид обява Продава
-
Тип имот 2-стаен
Подобни имоти
Малинова долина, тристаен апартамент завършен до ключ. Ново строителство
- 209,999€
- 106 m²
- ID: 1715
Елин Пелин, четиристаен апартамент в нова сграда
- 249,786€
- 139 m²
- ID: 2250
Елин Пелин, четиристаен апартамент в нова сграда
- 251,344€
- 140 m²
- ID: 2246
Елин Пелин. тристаен апартамент в нова сграда
- 186,138€
- 103 m²
- ID: 2245
Заяви оглед
Contact me

