Описание
Оферта №: 1445
Агенция „Trust Broker Solutions” предлага на Вашето внимание търговско помещение в кв. Драгалевци с АКТ 16! Този магазин е ново строителство и предлага най-добрите условия за развиване на вашия бизнес или за сигурна дългосрочна инвестиция.
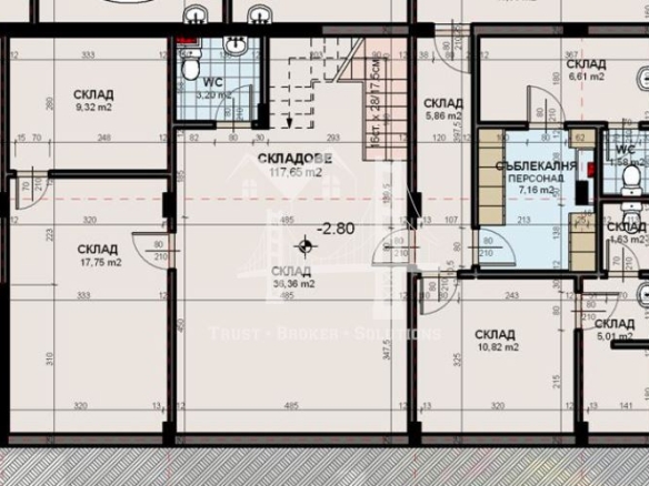
РАЗПРЕДЕЛЕНИЕ:
Разпределението е разделено между 2 помещения на партер и на сутерен. Разполага с две паркоместа.
ЛОКАЦИЯ:
Намира се в кв. Драгалевци до ул. Панорамен път. 12 м. лице към улицата.
СЪСТОЯНИЕ:
Има възможност за довършване спрямо изискванията на новия собственик. Има възможност за осъществяване на различни дейности. В имота има трифазен ток.
ДОПЪЛНИТЕЛНА ИНФОРМАЦИЯ:
✅ Разрешение за ползване (Акт 16) от 2014 г.
✅ Вид строителство: Тухла;
✅ Етаж: 0 от 6;
✅ Площ: 260 м2;
✅ Изложение: Юг - Изток;
Този магазин не просто предлага отлични условия за търговски дейности, но и представлява изключителна инвестиционна възможност с перспектива за висока доходност. Новото строителство гарантира модерни строителни решения, енергийна ефективност и минимални изисквания за ремонт и поддръжка.
Не пропускайте шанса да станете собственик на този изключителен имот. Свържете се с нас днес за повече информация и организиране на оглед!
Офертата е налична само за ограничен период. Инвестицията в този магазин е една отлична стъпка към развиване на успешен бизнес или стабилна дългосрочна доходност. Попитайте ни за повече детайли и условия.Агенция „Trust Broker Solutions” предлага напълно безплатно кредитни консултации. Работим с Credit Navigator - регистрирани в БНБ като независим банков консултант.
За още оферти посетете сайта ни: tbsestates.bg или се обадете на 0988830688.
Детайли
-
№ на имота 1445
-
Цена 221,000€
-
Квадратура 260 m²
-
Стаи 2
-
Год. на строеж 2014
-
Вид обява Продава
-
Тип имот Магазин
Екстри
Подобни имоти
Малинова долина, тристаен апартамент завършен до ключ. Ново строителство
- 209,999€
- 106 m²
- ID: 1715
Елин Пелин, четиристаен апартамент в нова сграда
- 249,786€
- 139 m²
- ID: 2250
Елин Пелин, четиристаен апартамент в нова сграда
- 251,344€
- 140 m²
- ID: 2246
Елин Пелин. тристаен апартамент в нова сграда
- 186,138€
- 103 m²
- ID: 2245
Заяви оглед
Contact me












