- 4
- Стаи
- 3
- Спални
- 0
- Баня
- 139 m²
- Квадратура
- m²
- Дворна площ
- 2026
- Година на строеж
Описание
Оферта №: 2250
Агенция „Trust Broker Solutions” предлага на Вашето внимание ремонтиран и обзаведен двустаен апартамент в с.Гара Елин Пелин.
Имотите ще бъдат завършени до гипсова шпакловка и замазка с монтирани блиндирани входни врати с тристранно заключване.
ЕТАП НА СТРОИТЕЛСТВО: пред Акт 15
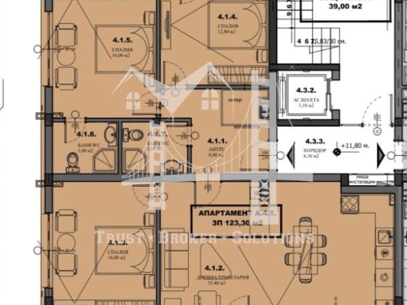
РАЗПРЕДЕЛЕНИЕ:
✅ Входно антре - 8.40 м²
✅ Дневна с кухненски бокс - 35.40 м²
✅ Спалня 1 - 16 м²
✅ Спалня 2 - 12.80 м²
✅ Спалня 3 - 16 м²
✅ Баня с WC 1 - 3.80 м²
✅ Баня с WC 2 - 3.80 м²
✅ Балкон 1 - 5 м²
✅ Балкон 2 - 5 м²
ЛОКАЦИЯ:
Намира се в с.Гара Елин Пелин .
✅ Спирка на градски транспорт: 210 м
✅ Магазин: 350 м
✅ Училище: 300 м
✅ Детска градина: на 3 мин с кола или 15 мин пеша.
СЪСТОЯНИЕ:
Ел. инсталация: Нова
ВиК: Нова
Дограма: PVC
СГРАДА И ВХОД
Състояние на вход: Добро
Контролиран достъп: Да
Саниране: Да
ОСНОВНИ ПАРАМЕТРИ:
✅ Разрешение за ползване (Акт 16) от 2026 г.
✅ Тип строителство: Тухла.
✅ Етаж: 4 от 4.
✅ Асансьор: Да
✅ Чиста площ: 123.30 м²
✅ Общи части: 15.47 м²
✅ Обща площ: 138.77 м²
✅ Балкони: 2 бр. - (№1 - 5м² / №2 - 5м²)
✅ Изложение: Югозападно.
✅ Отопление: Газ.
✅ Паркиране: Гараж (при допълнително заплащане)
Агенция „Trust Broker Solutions” предлага напълно безплатно кредитни консултации. Работим с Credit Navigator - регистрирани в БНБ като независим банков консултант.
За още оферти посетете сайта ни: tbsestates.bg или се обадете на 0878878386 (в работно време) и по всяко време на 0875364181.
Водещ брокер: Емануела Николова
Детайли
-
№ на имота 2250
-
Цена 249,786€
-
Квадратура 139 m²
-
Спални 3
-
Стаи 4
-
Год. на строеж 2026
-
Вид обява Продава
-
Тип имот 4-стаен
Подобни имоти
Ботунец, двустаен апартамент с гледка към язовир
- 55,000€
- 49 m²
- ID: 2058
Хаджи Димитър, 4-стаен апартамент в новострояща се сграда. До метро
- 343,000€
- 137 m²
- ID: 2392
Банкя, Св. Стефан, празен парцел в регулация.
- 90,000€
- 958 m²
- ID: 2368
Витоша, двустаен апартамент в сграда с акт 16
- 220,000€
- 65 m²
- ID: 2356
Заяви оглед
Contact me



