- 2
- Стаи
- 1
- Спалня
- 66 m²
- Квадратура
- 2028
- Година на строеж
Описание
Оферта №: 1805
Агенция „Trust Broker Solutions” представя на Вашето внимание двустайни апартаменти, които съчетават в себе си модерни удобства и отлична инвестиционна възможност. Разполагаме с жилища с различни квадратури и брой стаи в комплекс, намиращ се в един от най-бързо развиващите се квартали на София - Малинова Долина. Тези новопостроени апартаменти предлагат всичко, от което имате нужда за комфортен начин на живот.
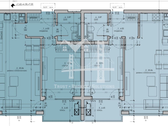
РАЗПРЕДЕЛЕНИЕ:
Апартаментите се състоят от: коридор, хол с кухненски бокс, спалня, баня с тоалетна, тераса. Възможност за закупуване на паркомясто или гараж.
СХЕМА НА ПЛАЩАНЕ:
Има различни схеми на плащане, като стандартната е следната:
30% - при подписване на предварителен договор;
10% - при достигане на плоча на жилището;
30% - акт 14
10% - поставена дограма в продавания обект;
10% - акт 15;
10% - акт 16.
ЕТАПИ:
Акт 14 и удостоверение по чл. 181 съгл. ЗУТ - до началото на 2027 г.
Акт 15 - 31.07.2028 г.
Акт 16 - 31.12.2028 г.
СЪСТОЯНИЕ:
Апартаментите ще бъдат издадени на шпакловка и замазка, с блиндирана входна врата и външна топлоизолация. Терасите ще бъдат завършени с гранитогрес, а парапетите - от закалено стъкло, което осигурява модерен и естетичен вид. 5-камерната дограма е с немски профил и с троен стъклопакет. Подсилената ел. инсталация ще е с предварително подготвени изводи за климатици във всяко помещение, с готова звънчева и домофонна инсталация, както и с оптично окабеляване за ТВ и интернет. Вградена вентилация в санитарните помещения гарантира добра циркулация на въздуха. ВиК инсталацията ще бъде с полипропиленови и ПВЦ тръби, с монтирани водомери. Отоплителната инсталация ще е готова до точка с разводка до всяко отоплително тяло от полиетиленови тръби в подова конструкция, без монтирани радиатори. Общите части, изработени с висококачествени материали като гранит и латекс, осигуряват дълготрайност. Ще бъдат поставени осветителни тела, както и външна входна врата от алуминиева дограма с ел.брава, свързана към домофонна уредба. Ще бъде инсталиран комфортен и тих асансьор, а стълбищните парапети ще са от инокс и триплекс. Газификацията на сградата предлага икономична и екологична опция за отопление. Тези характеристики правят апартаментите особено привлекателни за купувачите, които търсят модерен и добре оборудван дом.
ДОПЪЛНИТЕЛНА ИНФОРМАЦИЯ:
✅ Разрешение за ползване (Акт 16) до 31.12.2028 г.;
✅ Вид строителство: Тухла;
✅ Сградите в жилищния комплекс са 4 етажни;
✅ Площ: от 65 до 69 м2;
✅ Отопление: ГАЗ, климатици.
Агенция „Trust Broker Solutions” предлага напълно безплатно кредитни консултации. Работим с Credit Navigator - регистрирани в БНБ като независим банков консултант.
За още оферти посетете сайта ни: tbsestates.bg или се обадете на 0878 878 386.
Водещ брокер: Ани Фукита
Детайли
-
№ на имота 1805
-
Цена 139,000€
-
Квадратура 66 m²
-
Спалня 1
-
Стаи 2
-
Год. на строеж 2028
-
Вид обява Продава
-
Тип имот 2-стаен
Подобни имоти
Малинова долина, тристаен апартамент завършен до ключ. Ново строителство
- 209,999€
- 106 m²
- ID: 1715
Елин Пелин, четиристаен апартамент в нова сграда
- 249,786€
- 139 m²
- ID: 2250
Елин Пелин, четиристаен апартамент в нова сграда
- 251,344€
- 140 m²
- ID: 2246
Елин Пелин. тристаен апартамент в нова сграда
- 186,138€
- 103 m²
- ID: 2245
Заяви оглед
Contact me




