- 3
- Стаи
- 2
- Спални
- 1
- Баня
- 115 m²
- Квадратура
- 2026
- Година на строеж
Описание
Оферта №: 2214
Агенция „Trust Broker Solutions” предлага на Вашето внимание тристаен апартамент в кв. Малинова долина. До бул.Живко Сталев.
ЕТАП НА СТРОИТЕЛСТВО: след Акт 14;
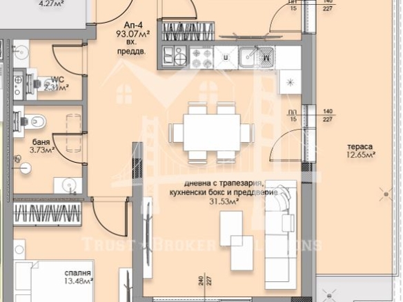
РАЗПРЕДЕЛЕНИЕ:
✅ Дневна с кухненски бокс и предверие - 31.53 м²
✅ Спалня - 12.31 м²
✅ Спалня 1 - 11.02 м²
✅ Спалня 2 - 13.48 м²
✅ Баня - 3.73 м²
✅ WC - 2.31 м²
✅ Балкон - 12.65 м²
✅ Склад -1.54 м²
ЛОКАЦИЯ:
Намира се в кв. Малинова долина.
✅ Метро: на 14 минути с кола
✅ Спирка на градски транспорт: 100 м
✅ Магазин 51 м
✅ Училище: 14 минути пеша
✅ Детска градина: 220 м
СЪСТОЯНИЕ:
Ел. инсталация: Нова
ВиК: Нова
СГРАДА И ВХОД
Състояние на вход: Добро
Контролиран достъп: Да
ОСНОВНИ ПАРАМЕТРИ:
✅ Разрешение за ползване (Акт 16) от 2026г.
✅ Тип строителство: Тухла.
✅ Етаж: 2 от 7.
✅ Асансьор: Да
✅ Чиста площ: 93.07 м²
✅ Общи части: 18.27 м²
✅ Обща площ: 114.61 м²
✅ Балкони: 1бр. + 12.65 м²
✅ Изложение: Югоизток
✅ Отопление: Газ.
✅ Гараж (при допълнително заплащане)
СХЕМА НА ПЛАЩАНЕ:
- 20% при предварителен договор;
- 20% при кота 0;
- 20% при кота :етаж;
- 20% при Акт 14;
-10% при Акт 15;
-10% при Акт 16.
Агенция „Trust Broker Solutions” предлага напълно безплатно кредитни консултации. Работим с Credit Navigator - регистрирани в БНБ като независим банков консултант.
За още оферти посетете сайта ни: tbsestates.bg или се обадете на 0878878386 (в работно време) и по всяко време на 0875364181.
Водещ брокер: Емануела Николова
Детайли
-
№ на имота 2214
-
Цена 252,142€
-
Квадратура 115 m²
-
Спални 2
-
Баня 1
-
Стаи 3
-
Год. на строеж 2026
-
Вид обява Продава
-
Тип имот 3-стаен
Подобни имоти
Малинова долина, тристаен апартамент завършен до ключ. Ново строителство
- 209,999€
- 106 m²
- ID: 1715
Елин Пелин, четиристаен апартамент в нова сграда
- 249,786€
- 139 m²
- ID: 2250
Елин Пелин, четиристаен апартамент в нова сграда
- 251,344€
- 140 m²
- ID: 2246
Елин Пелин. тристаен апартамент в нова сграда
- 186,138€
- 103 m²
- ID: 2245
Заяви оглед
Contact me


