- 3
- Стаи
- 2
- Спални
- 0
- Баня
- 145 m²
- Квадратура
- m²
- Дворна площ
- 2026
- Година на строеж
Описание
Оферта №: 1912. БЕЗ КОМИСИОННА ОТ КУПУВАЧА!!!
Агенция „Trust Broker Solutions” представя на Вашето внимание затворен комплекс с двустайни, тристайни и четиристайни апартаменти, които съчетават в себе си модерни удобства и отлична инвестиционна възможност. Намира се в един от най-бързо развиващите се квартали на София - Малинова долина, където е планирано построяването на метростанция. Двете жилищни сгради предлагат всичко, от което имате нужда за комфортен начин на живот.
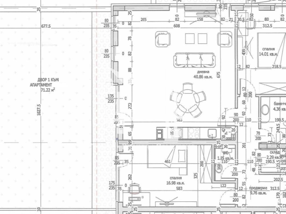
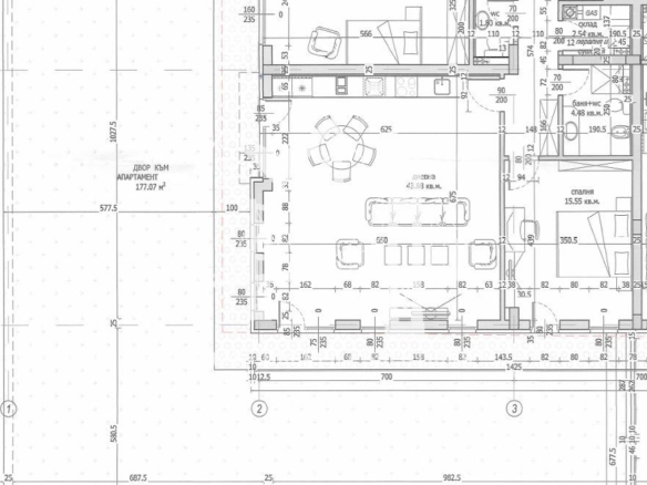
РАЗПРЕДЕЛЕНИЕ:
Тристайните ни апартаменти разполагат с коридор, просторна всекидневна с кухненски бокс (41 кв.), две големи спални, баня с тоалетна, отделна тоалетна, склад и тераса (12. кв.), докато партерните си имат самостоятелен двор (104 и 177кв.м.). Има възможност за закупуване на гараж.
ЛОКАЦИЯ:
Намира се в ж.к. Малинова долина, в непосредствена близост до Симеоновско шосе, бъдеща метростанция, спирки на градски транспорт (автобуси № 67 и 805); магазини Кауфланд, Фантастико и др.; болница и аптеки; училище и детскa градинa.
СХЕМА НА ПЛАЩАНЕ:
- 30% - при подписване на предварителен договор;
- 70% - при прехвърляне.
СЪСТОЯНИЕ:
Апартаментите ще бъдат издадени на шпакловка и замазка.
ДОПЪЛНИТЕЛНА ИНФОРМАЦИЯ:
✅ Етап на строителство: Акт 14 и удостоверение по чл. 181 съгл. ЗУТ;
✅ Вид строителство: Тухла;
✅ Етаж: 3 от 6 (имаме и както на по-висок, така и на по-нисък етаж);
✅ Площ: от 114 до 145 м2;
Агенция „Trust Broker Solutions” предлага напълно безплатно кредитни консултации. Работим с Credit Navigator - регистрирани в БНБ като независим банков консултант.
За още оферти посетете сайта ни: tbsestates.bg или се обадете на 0878 878 386.
Водещ брокер: Ани Фукита
Детайли
-
№ на имота 1912
-
Цена 261,545€
-
Квадратура 145 m²
-
Спални 2
-
Стаи 3
-
Год. на строеж 2026
-
Вид обява Продава
-
Тип имот 3-стаен
Подобни имоти
Ботунец, двустаен апартамент с гледка към язовир
- 55,000€
- 49 m²
- ID: 2058
Хаджи Димитър, 4-стаен апартамент в новострояща се сграда. До метро
- 343,000€
- 137 m²
- ID: 2392
Банкя, Св. Стефан, празен парцел в регулация.
- 90,000€
- 958 m²
- ID: 2368
Витоша, двустаен апартамент в сграда с акт 16
- 220,000€
- 65 m²
- ID: 2356
Заяви оглед
Contact me



