- 2
- Стаи
- 1
- Спалня
- 0
- Баня
- 71 m²
- Квадратура
- m²
- Дворна площ
- 2026
- Година на строеж
Описание
Оферта №: 2192
Агенция „Trust Broker Solutions” предлага на Вашето внимание двустаен апартамент в кв. Малинова долина. До бъдеща метростанция на бул.Симеоновско шосе. ЦЕНАТА Е ЗА ДОВЪРШВАНЕ ДО КЛЮЧ!
ЕТАП НА СТРОИТЕЛСТВО: Проект;
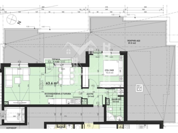
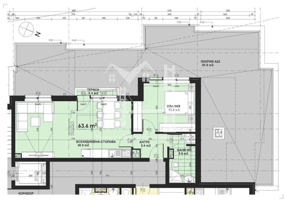
РАЗПРЕДЕЛЕНИЕ:
✅ Входно антре - 3.4м²
✅ Дневна с кухненски бокс - 30.9м²
✅ Спалня 1 - 12.8м²
✅ Баня с WC - 5.6м²
✅ Балкон - 1.1м²
ЛОКАЦИЯ:
Намира се в кв. Малинова долина в близост до бул.Симеоновско шосе.
✅ Метро:(Новопроектиращия се лъч на метро)
✅ Спирка на градски транспорт:450 м
✅ Магазин 400м
✅ Детска градина:500м
СХЕМА НА ПЛАЩАНЕ:
-На предварителен договор - 10%;
-На кота 0 - 20%;
-Останалите е по договаряне. ЗАВЪРШВАНЕ ДО КЛЮЧ!
СЪСТОЯНИЕ:
Апартаментът се издава завършен до ключ.
Ел. инсталация: Нова
ВиК: Нова
СГРАДА И ВХОД
Контролиран достъп: Да
Саниране: Да
ОСНОВНИ ПАРАМЕТРИ:
✅ Разрешение за ползване (Акт 16) от 2027г.
✅ Тип строителство:Тухла.
✅ Етаж: 4 от 4.
✅ Асансьор: Да
✅ Чиста площ: 64 м²
✅ Общи части: 7 м²
✅ Обща площ: 71 м²
✅ Мазе: Да – по избор без плащане
✅ Гаражи: при допълнително заплащане
✅ Балкони: 1бр + 1.1м²
✅ Изложение: Север
✅ Отопление: Газ.
✅ Паркиране: Гараж (със заплащане допълнително)
Агенция „Trust Broker Solutions” предлага напълно безплатно кредитни консултации. Работим с Credit Navigator - регистрирани в БНБ като независим банков консултант.
За още оферти посетете сайта ни: tbsestates.bg или се обадете на 0878878386 (в работно време) и по всяко време на 0875364181.
Водещ брокер: Емануела Николова
Детайли
-
№ на имота 2192
-
Цена 213,000€
-
Квадратура 71 m²
-
Спалня 1
-
Стаи 2
-
Год. на строеж 2026
-
Вид обява Продава
-
Тип имот 2-стаен
Подобни имоти
Ботунец, двустаен апартамент с гледка към язовир
- 55,000€
- 49 m²
- ID: 2058
Хаджи Димитър, 4-стаен апартамент в новострояща се сграда. До метро
- 343,000€
- 137 m²
- ID: 2392
Банкя, Св. Стефан, празен парцел в регулация.
- 90,000€
- 958 m²
- ID: 2368
Витоша, двустаен апартамент в сграда с акт 16
- 220,000€
- 65 m²
- ID: 2356
Заяви оглед
Contact me




