- 3
- Стаи
- 2
- Спални
- 111 m²
- Квадратура
- 2026
- Година на строеж
Описание
Оферта №: 2196
Агенция „Trust Broker Solutions” предлага на Вашето внимание тристаен апартамент в кв. Малинова долина. В близост до бъдеща метростанция на бул.Симеоновско шосе.
ЕТАП НА СТРОИТЕЛСТВО: Проект;
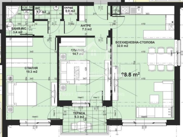
РАЗПРЕДЕЛЕНИЕ:
✅ Входно антре - 7.3м²
✅ Дневна с кухненски бокс - 32м²
✅ Спалня 1 - 14.7м²
✅ Спалня 2 - 19.3м²
✅ Баня с WC - 3.4м²
✅ WC - 1.7м²
✅ Балкон - 5.3м²
✅ Склад - 0.8м²
ЛОКАЦИЯ:
Намира се в кв. Малинова долина в близост до бул.Симеоновско шосе.
✅ Метро:(Новопроектиращия се лъч на метро)
✅ Спирка на градски транспорт:450 м
✅ Магазин 400м
✅ Детска градина:500м
СХЕМА НА ПЛАЩАНЕ:
-На предварителен договор - 10%;
-На кота 0 - 20%;
-Останалите е по договаряне.
СГРАДА И ВХОД
Състояние на вход: Добро
Контролиран достъп: Да
СЪСТОЯНИЕ:
Апартаментът се издава на шпакловка и замаска.
Ел. инсталация: Нова
ВиК: Нова
Подови настилки: Замаска
Обзавеждане: Не
СГРАДА И ВХОД
Контролиран достъп: Да
Саниране: Да
ОСНОВНИ ПАРАМЕТРИ:
✅ Разрешение за ползване (Акт 16) от 2027г.
✅ Тип строителство:Тухла.
✅ Етаж: 2 от 4.
✅ Асансьор: Да
✅ Чиста площ: 99 м²
✅ Общи части: 12 м²
✅ Обща площ: 111 м²
✅ Мазе: Да – по избор без плащане
✅ Гаражи: при допълнително заплащане
✅ Балкони: 1бр + 5.3м²
✅ Изложение: Северозаден
✅ Отопление: Газ.
✅ Паркиране: Гараж (със заплащане допълнително)
Агенция „Trust Broker Solutions” предлага напълно безплатно кредитни консултации. Работим с Credit Navigator - регистрирани в БНБ като независим банков консултант.
За още оферти посетете сайта ни: tbsestates.bg или се обадете на 0878878386 (в работно време) и по всяко време на 0875364181.
Водещ брокер: Емануела Николова
Детайли
-
№ на имота 2196
-
Цена 264,000€
-
Квадратура 111 m²
-
Спални 2
-
Стаи 3
-
Год. на строеж 2026
-
Вид обява Продава
-
Тип имот 3-стаен
Подобни имоти
Малинова долина, тристаен апартамент завършен до ключ. Ново строителство
- 209,999€
- 106 m²
- ID: 1715
Елин Пелин, четиристаен апартамент в нова сграда
- 249,786€
- 139 m²
- ID: 2250
Елин Пелин, четиристаен апартамент в нова сграда
- 251,344€
- 140 m²
- ID: 2246
Елин Пелин. тристаен апартамент в нова сграда
- 186,138€
- 103 m²
- ID: 2245
Заяви оглед
Contact me




