Описание
Оферта №: 2266
Агенция „Trust Broker Solutions” предлага на Вашето внимание тристаен апартамент в кв. Витоша в близост до Зоологическата градина - София.
ЕТАП НА СТРОИТЕЛСТВО: преди Акт 14 - очаква се да вземе октомври 2026г.
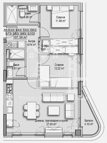
РАЗПРЕДЕЛЕНИЕ:
✅ Входно антре - 8.54 м²
✅ Дневна с кухненски бокс - 27.60 м²
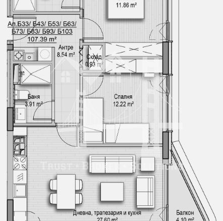
✅ Спалня 1 - 12.22 м²
✅ Спалня 2 - 11.86 м²
✅ Баня с WC 1 - 3.91 м²
✅ Баня с WC 2 - 4.58 м²
✅ Склад - 0.93 м²
✅ Балкон - 4.10 м²
ЛОКАЦИЯ:
Намира се в кв.Витоша в близост до Зоологическата градина - София.
✅ Спирка на градски транспорт: 50 м
✅ Магазин 290 м
✅ Училище 600 м
✅ Детска градина: 600 м
СЪСТОЯНИЕ:
Ел. инсталация: Нова
ВиК: Нова
Подови настилки: SPC
Дограма: PVC
СГРАДА И ВХОД
Състояние на вход: Добро
Контролиран достъп: Да
Саниране: Да
ОСНОВНИ ПАРАМЕТРИ:
✅ Разрешение за ползване (Акт 16) от 2028г.
✅ Тип строителство: Тухла.
✅ Етаж: 6 от 18.
✅ Асансьор: Да
✅ Чиста площ: 88.96 м²
✅ Общи части: 18.43 м²
✅ Обща площ: 107.39 м²
✅ Таван / мазе: Не
✅ Балкони: 1 бр. - 4.10 м²
✅ Изложение: Югоизточен.
✅ Отопление: Газов котел.
✅ Паркиране: Гараж (при допълнително заплащане) - Паркоместа - 35 000 евро на ниво сутерен.
СХЕМА НА ПЛАЩАНЕ:
Схеми на плащане с банков кредит
• Вариант 1:
20% - Аванс при подписване на Предварителен договор
80% - При снабдяване на сградата с АКТ 15 и прехвърляне на
собствеността
• Вариант 2:
20% - Аванс при подписване на Предварителен договор
70% - При снабдяване на сградата с АКТ 14 и прехвърляне на
собствеността
10% - На АКТ 16 изплащани от банката посредством банковия кредит
Схеми на плащане със собствени средства
• Вариант 3
20% - Аванс при подписване на Предварителен договор
40% - При снабдяване на сградата с АКТ 14
40% - При снабдяване на сградата с АКТ 15 и прехвърляне на
собствеността
* При желание от страна на клиента за различна схема на плащане са възможни разговори с
управителите на „ЕМДИ Тауър“ ООД.
* Апартамент се запазва срещу депозит от 5000 евро.
Агенция „Trust Broker Solutions” предлага напълно безплатно кредитни консултации. Работим с Credit Navigator - регистрирани в БНБ като независим банков консултант.
За още оферти посетете сайта ни: tbsestates.bg или се обадете на 0878878386 (в работно време) и по всяко време на 0875364181.
Водещ брокер: Емануела Николова
Детайли
-
№ на имота 2266
-
Цена 238,000€
-
Квадратура 107 m²
-
Спални 2
-
Стаи 3
-
Год. на строеж 2028
-
Вид обява Продава
-
Тип имот 3-стаен
Подобни имоти
Оборище, два двустайни апартаменти готови за отдаване или за живеене
- 225,000€
- 38 m²
- ID: 2264
Оборище, четиристаен обзаведен апартамент с паркоместа
- 450,000€
- 75 m²
- ID: 2263
Младост 1, двустаен в близост до метро
- 187,700€
- 60 m²
- ID: 2320
Младост 1, тристаен апартамент в близост до метро
- 290,500€
- 92 m²
- ID: 2319
Заяви оглед
Contact me






