- 4
- Стаи
- 3
- Спални
- 0
- Баня
- 202 m²
- Квадратура
- m²
- Дворна площ
- 2026
- Година на строеж
Описание
Оферта №: 2217
Агенция „Trust Broker Solutions” предлага на Вашето внимание ремонтиран и обзаведен двустаен апартамент в гр. Божурище в комплекс ХАУС ПАРК. Градът е с тиха и спокойна среда, има и бърз достъп до западна София. Разполага с редовни крайградски автобуси/микробуси към София с връзка до метро (обикновено станциите в Люлин/Обеля/Сливница), както и влакова връзка със спирка в района на Божурище. Градът е перфектен за семейства с деца, като за тях има училище, детска градина, детски площадки.
ЦЕНАТА Е БЕЗ ДДС!
ЕТАП НА СТРОИТЕЛСТВО: след Акт 14;
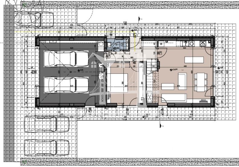
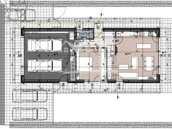
РАЗПРЕДЕЛЕНИЕ:
1-ви етаж :
✅ Входно антре и стълби - 13 м²
✅ Дневна с кухненски бокс - 37 м²
✅ Спалня 1 - 13 м²
✅Гараж с техническо помещение - 34.5 м²
✅ WC - 2.4 м²
2-ри етаж :
✅ Антре и стълби - 9.4 м²
✅ Спалня 2 - 16.7 м²
✅ Спалня 3 - 21 м²
✅ Килер към спалня 3 - 2.7 м²
✅ Спалня 4 - 17 м²
✅ Баня 1 - 5 м²
✅ Баня 2 - 4 м²
✅ Тераса - 4.4 м²
ЛОКАЦИЯ:
Намира се в гр. Божурище.
✅ Спирка на градски транспорт: 170 м
✅ Магазин 900 м
✅ Училище: на 4 минути с кола
✅ Детска градина: на 4 минути с кола
СЪСТОЯНИЕ:
Ел. инсталация: Нова
ВиК: Нова
Дограма: PVC
Подови настилки: Ламинат / Гранитогрес
Обзавеждане: Не
СГРАДА И ВХОД
Контролиран достъп: Да - При входа на комплекса ще бъде монтирана плъзгаща се метална охранителна врата с дистанционно управление.
Саниране: Да
ОСНОВНИ ПАРАМЕТРИ:
✅ Разрешение за ползване (Акт 16) от 2026 г.
✅ Тип строителство: Тухла.
✅ Етажи: 2 бр.
✅ Чиста площ на къщата: 202.00 м²
✅ Чиста площ на двора: 505.27 м²
✅ Отопление: Ток - има опция за изпълнение на подово отопление.
✅ Паркиране: Гараж за 2 бр. автомобила + 3 паркоместа (Включени към цената).
СХЕМА НА ПЛАЩАНЕ:
✅За клиенти с банков кредит само 15% самоучастие
Агенция „Trust Broker Solutions” предлага напълно безплатно кредитни консултации. Работим с Credit Navigator - регистрирани в БНБ като независим банков консултант.
За още оферти посетете сайта ни: tbsestates.bg или се обадете на 0878878386 (в работно време) и по всяко време на 0875364181.
Водещ брокер: Емануела Николова
Детайли
-
№ на имота 2217
-
Цена 349,500€
-
Квадратура 202 m²
-
Спални 3
-
Стаи 4
-
Год. на строеж 2026
-
Вид обява Продава
-
Тип имот Къща
Подобни имоти
Ботунец, двустаен апартамент с гледка към язовир
- 55,000€
- 49 m²
- ID: 2058
Хаджи Димитър, 4-стаен апартамент в новострояща се сграда. До метро
- 343,000€
- 137 m²
- ID: 2392
Банкя, Св. Стефан, празен парцел в регулация.
- 90,000€
- 958 m²
- ID: 2368
Витоша, двустаен апартамент в сграда с акт 16
- 220,000€
- 65 m²
- ID: 2356
Заяви оглед
Contact me




