- 4
- Стаи
- 3
- Спални
- 285 m²
- Квадратура
- 2026
- Година на строеж
Описание
Оферта №: 2284
Агенция „Trust Broker Solutions” предлага на Вашето внимание новостроящи се къщи в затворен комплекс във в.з. Бункера.
ЕТАП НА СТРОИТЕЛСТВО: имат Акт 14.
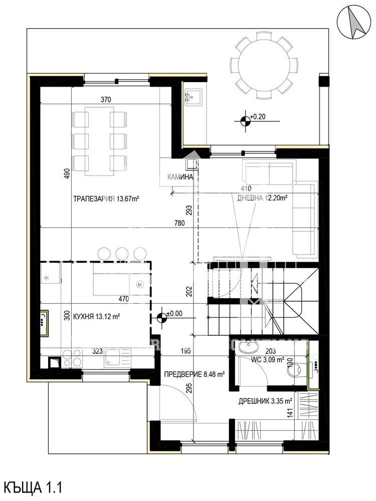
РАЗПРЕДЕЛЕНИЕ:
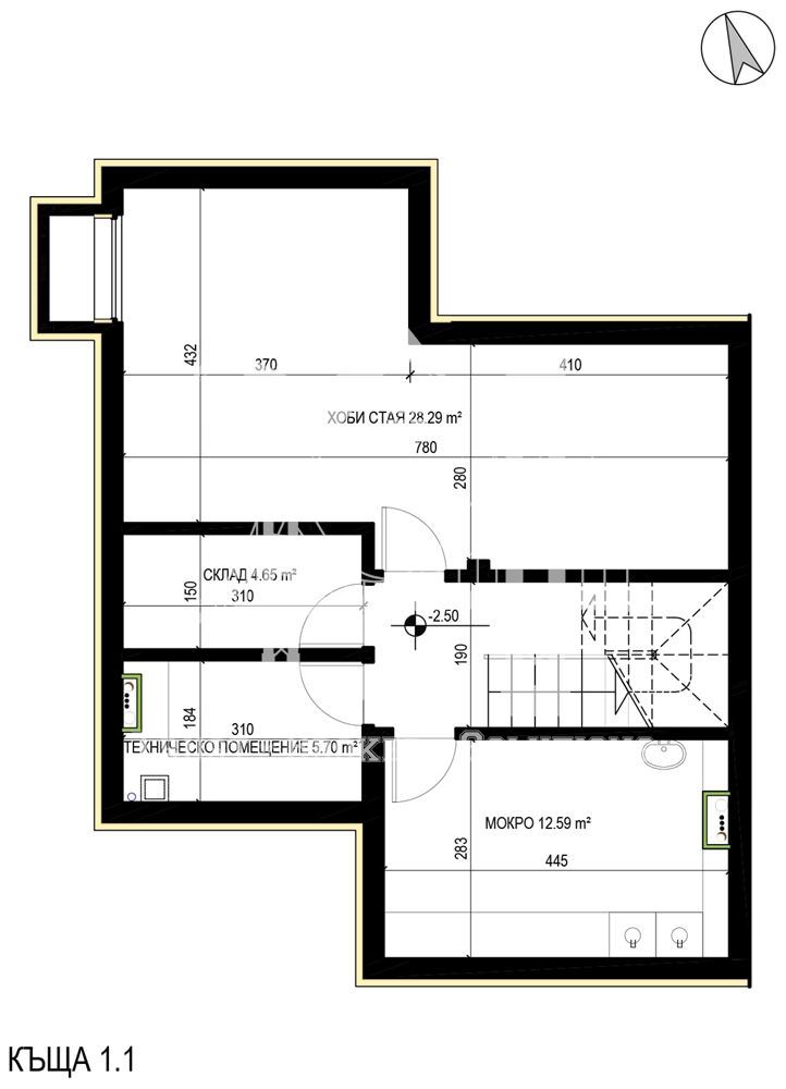
Етаж -1:
✅ Хоби стая - 28.29 м²
✅ Склад - 4.65 м²
✅ Техническо помещение - 5.70 м²
✅ Мокро помещение - 12.59 м²
Етаж 1:
✅ Входно антре - 8.48 м²
✅ Дневна с кухненски бокс - 12.20 м²
✅ Кухня - 13.12 м²
✅ Трапезария - 13.67 м²
✅ WC - 3.09 м²
✅ Дрешник - 3.35 м²
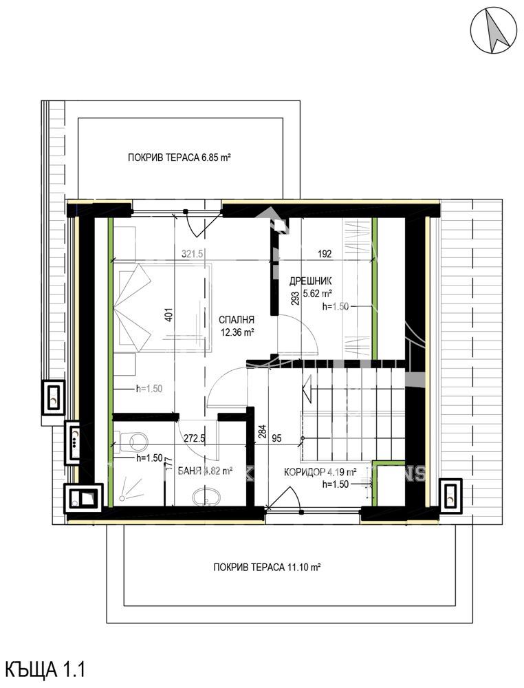
Етаж 2:
✅ Коридор - 2.62 м²
✅ Спалня 1 - 21.90 м²
✅ Спалня 2 - 15.89 м²
✅ Баня с WC - 4 м²
✅ Баня с WC - 6.24 м²
Етаж 3:
✅ Входно антре - 4.19 м²
✅ Спалня 3 - 12.36 м²
✅ Дрешник - 5.62 м²
✅ Баня с WC - 4.82 м²
✅ Балкон 1 - 11.10 м²
✅ Балкон 2 - 6.85 м²
ЛОКАЦИЯ:
Намира се във в.з Бункера в село Бистрица.
✅ Спирка на градски транспорт: 100 м
✅ Магазин 550 м
✅ Училище 220 м
✅ Детска градина: 220 м
СЪСТОЯНИЕ:
Ел. инсталация: Нова
ВиК: Нова
Подови настилки: SPC
Дограма: Алуминиева
СГРАДА И ВХОД
Контролиран достъп: Да, затворен комплекс с ограничен достъп и охрана.
Саниране: Да
ОСНОВНИ ПАРАМЕТРИ:
✅ Разрешение за ползване (Акт 16) от 2026 г.
✅ Тип строителство: Тухла.
✅ Етаж: общо 4 (3 надземни и един подземен).
✅ Чиста площ: XX м²
✅ Двор: от 55 до 205 м² (90 или 87 кв.м)
✅ Обща площ: 285 м²
✅ Балкони: 2 бр.
✅ Отопление: Ток .
✅ Паркиране: Паркоместа (включени са към цената).
СХЕМА НА ПЛАЩАНЕ: / Примерни /
Вариант 1:
20 % на предварителен договор
70 % на Акт 15;
10 % на Акт 16.
Вариант 2:
40 %, на предварителен договор;
50 % на акт 15;
10 % на акт 16.
Агенция „Trust Broker Solutions” предлага напълно безплатно кредитни консултации. Работим с Credit Navigator - регистрирани в БНБ като независим банков консултант.
За още оферти посетете сайта ни: tbsestates.bg или се обадете на 0878878386 (в работно време) и по всяко време на 0875364181.
Водещ брокер: Емануела Николова
Детайли
-
№ на имота 2284
-
Цена 715,831€
-
Квадратура 285 m²
-
Спални 3
-
Стаи 4
-
Год. на строеж 2026
-
Вид обява Продава
-
Тип имот Къща
Подобни имоти
Оборище, два двустайни апартаменти готови за отдаване или за живеене
- 225,000€
- 38 m²
- ID: 2264
Оборище, четиристаен обзаведен апартамент с паркоместа
- 450,000€
- 75 m²
- ID: 2263
Младост 1, двустаен в близост до метро
- 187,700€
- 60 m²
- ID: 2320
Младост 1, тристаен апартамент в близост до метро
- 290,500€
- 92 m²
- ID: 2319
Заяви оглед
Contact me









