- 4
- Стаи
- 3
- Спални
- 0
- Баня
- 249 m²
- Квадратура
- m²
- Дворна площ
- 2026
- Година на строеж
Описание
Оферта №: 2224
Агенция „Trust Broker Solutions” предлага на Вашето внимание двуетажна къща в комплекс Делта Хил.
ЦЕНАТА Е БЕЗ ДДС!
Къщата се издава на шпакловка и замазка!
ЕТАП НА СТРОИТЕЛСТВО: Проект;
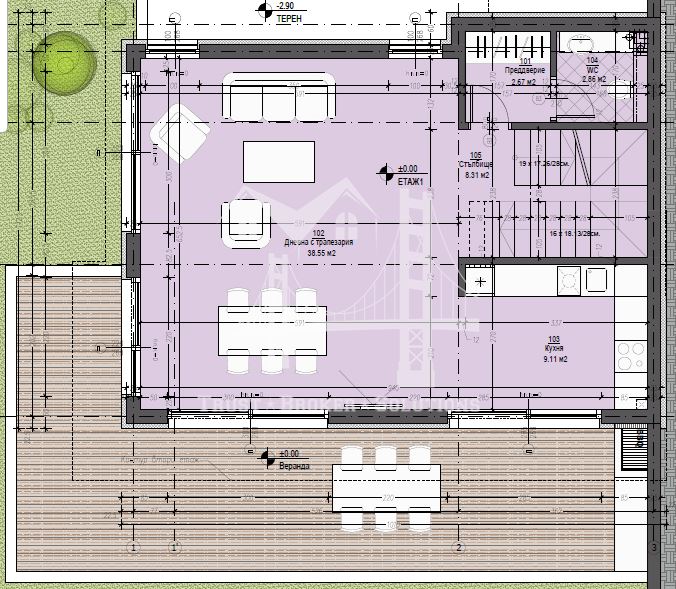
РАЗПРЕДЕЛЕНИЕ:
Етаж 0:
✅ Гараж -38.54 м²
✅ Склад - 13.10 м²
✅ Гардероб - 2.55 м²
✅ Антре - 4.78 м²
Етаж 1:
✅ Предверие - 2.67 м²
✅ Дневна с трапезария - 38.55 м²
✅ Кухня - 9.11 м²
✅ WC - 2.86 м²
✅ Стълбище - 8.31 м²
Етаж 2:
✅ Коридор - 4.72 м²
✅ Мокро помещение - 1.51 м²
✅ Спалня 1 - 15.67 м²
✅ Спалня 2 - 15.41 м²
✅ Балкон - 5.08 м²
✅ Спалня 3 - 17.73 м²
✅ Гардероб - 3.19 м²
✅ Баня с WC 1 - 5.39 м²
✅ Баня с WC 2- 5.55 м²
ЛОКАЦИЯ:
Намира се в комплекс Делта Хил. Това е затворен жилищен комплекс над с. Кладница, на югозападния склон на Витоша, в община Перник. Разстоянието до град София е 30 минути с кола, и само на 15 минути от град Перник.
✅ Има градски транспорт - автобуси и маршрутки.
✅ Магазин: на 4 минути с кола.
✅ Училище: на 6 минути с кола.
✅ Детска градина: на 10 минути с кола.
СЪСТОЯНИЕ:
Ел. инсталация: Нова
ВиК: Нова
СГРАДА И ВХОД
Контролиран достъп: Да
Саниране: Да
ОСНОВНИ ПАРАМЕТРИ:
✅ Разрешение за ползване (Акт 16) от 2026 г.
✅ Тип строителство: Тухла.
✅ Етажи: 3
✅ Чиста площ: 248.86 м²
✅ Балкони: 1бр. + 5.08 м²
✅ Отопление: Ток (термопомпа/ подово отопление) Цената включва инсталацията на подовото отопление, но ЦЕНАТА НЕ ВКЛЮЧВА вътрешното и външното тяло на термопомпата!
✅ Паркиране: Гараж (включен към цената)
Агенция „Trust Broker Solutions” предлага напълно безплатно кредитни консултации. Работим с Credit Navigator - регистрирани в БНБ като независим банков консултант.
За още оферти посетете сайта ни: tbsestates.bg или се обадете на 0878878386 (в работно време) и по всяко време на 0875364181.
Водещ брокер: Емануела Николова
Детайли
-
№ на имота 2224
-
Цена 507,675€
-
Квадратура 249 m²
-
Спални 3
-
Стаи 4
-
Год. на строеж 2026
-
Вид обява Продава
-
Тип имот Къща
Подобни имоти
Ботунец, двустаен апартамент с гледка към язовир
- 55,000€
- 49 m²
- ID: 2058
Хаджи Димитър, 4-стаен апартамент в новострояща се сграда. До метро
- 343,000€
- 137 m²
- ID: 2392
Банкя, Св. Стефан, празен парцел в регулация.
- 90,000€
- 958 m²
- ID: 2368
Витоша, двустаен апартамент в сграда с акт 16
- 220,000€
- 65 m²
- ID: 2356
Заяви оглед
Contact me




