Център, новострояща се сграда за бизнес, офис или тристайни апартаменти. До метро
- 1,400,000€
- 9
- Стаи
- 6
- Спални
- 0
- Баня
- 427 m²
- Квадратура
- 233 m²
- Дворна площ
- 2025
- Година на строеж
Описание
Оферта №: 1994
Агенция „Trust Broker Solutions” предлага на Вашето внимание просторна новострояща се къща в сърцето на София Център – перфектна както за стилен градски дом, така и за сигурна инвестиция! Светли помещения, модерна визия и гъвкаво разпределение, което позволява едновременно комфортно обитаване и висок потенциал за доход от наем. Сграда на три етажа и партер. Сградата е подходяща за офис, клиника, кантора и друг вид бизнес. Продава се цялата фирма, като сградата е единствен актив. Намира се в центъра. До метро.
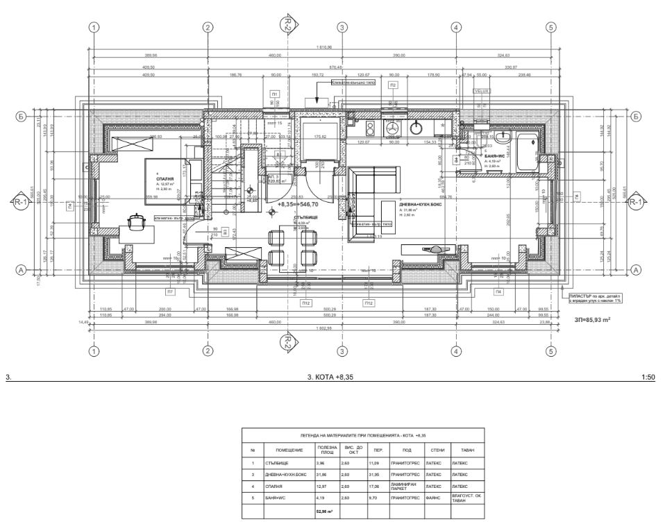
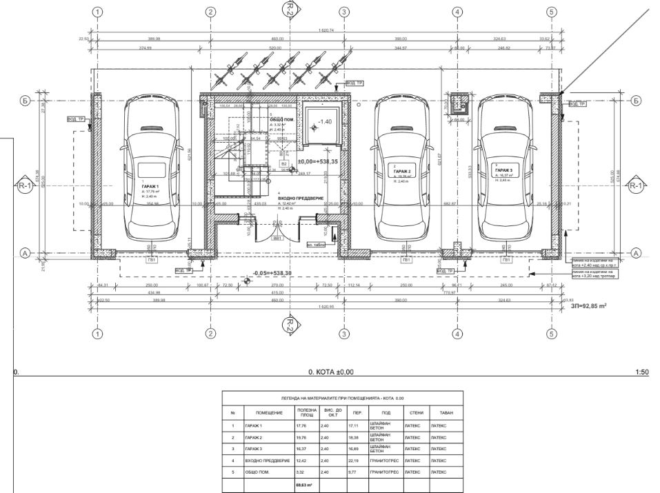
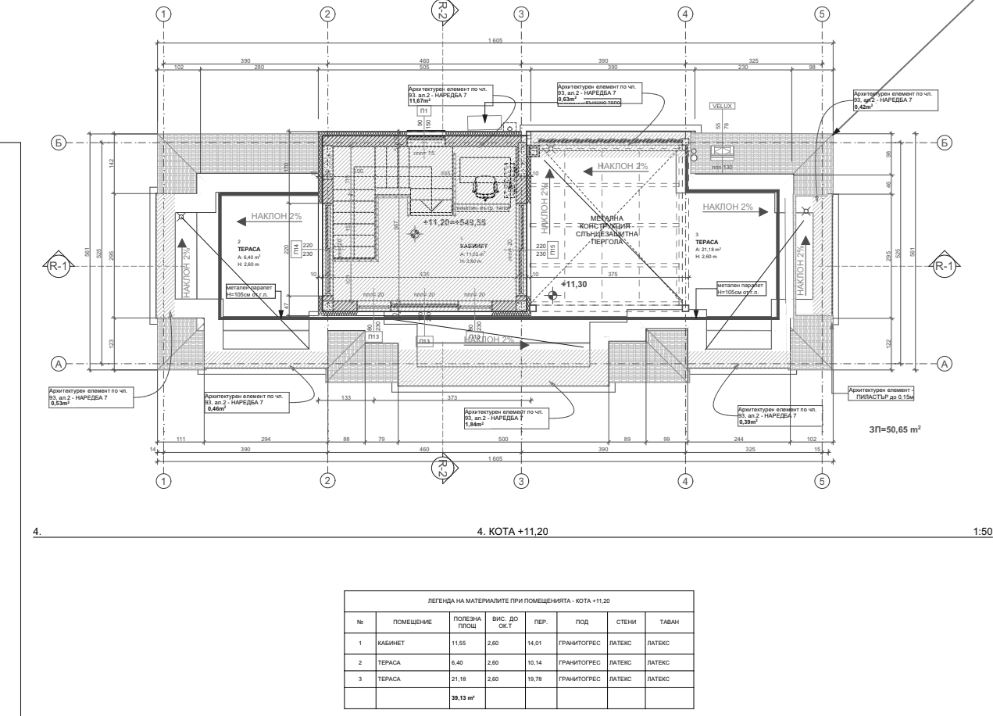
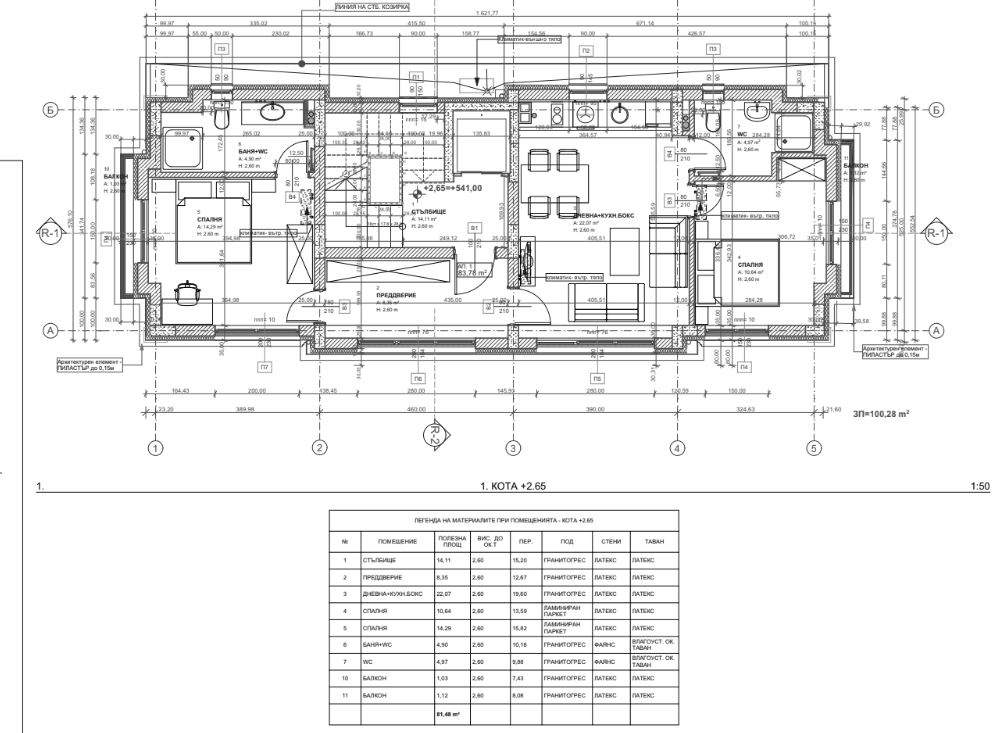
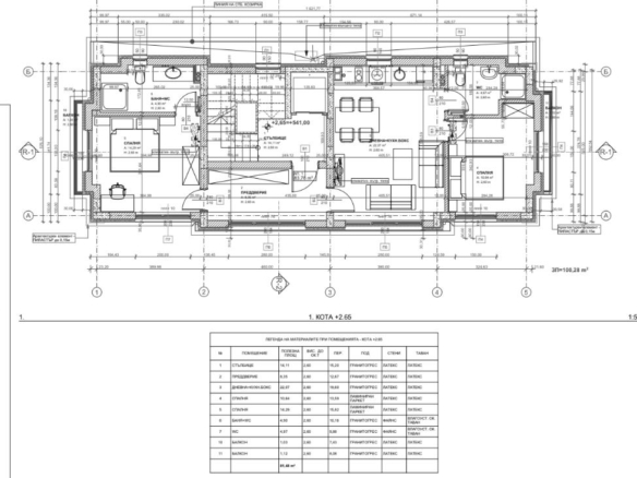
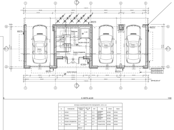
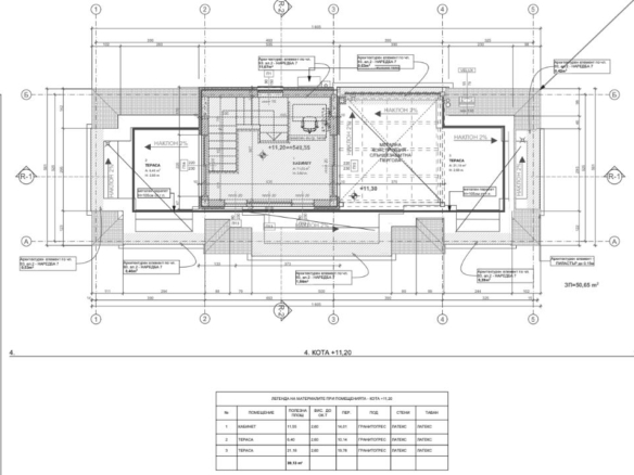
РАЗПРЕДЕЛЕНИЕ:
Двор с 2 паркоместа
Партер: 3 гаража;
1-ви, 2-ри и трети етаж: коридор, две помещения (офиси или спалнии), голямо помещение (хол с кухненски бокс), две бани с тоалетни;
4-ти етаж: малко офис пространство и два покривни балкона с възможност за освояване на единия;
ЛОКАЦИЯ:
Намира се в центъра до бул. Христо Ботев в тиха пряка. На пешеходно разстояние до метро, ключови булеварди, офис сгради, културни и административни институции.
СЪСТОЯНИЕ:
Сградата е пред Акт 16. Ще бъде издадена на шпакловка и замазка.
ДОПЪЛНИТЕЛНА ИНФОРМАЦИЯ:
✅ Разрешение за ползване (Акт 16) от 2026г.
✅ Вид строителство: Тухла;
✅ Етажи: 4
✅ Площ: 427м2;
✅ Отопление: Термопомпа, електричество
София Център съчетава исторически чар и съвременна инфраструктура, което гарантира устойчив ръст на стойността на имотите.
Международни компании, отличен транспорт и богат културен живот превръщат района в водещ избор за живеене и инвестиции.
Агенция „Trust Broker Solutions” предлага напълно безплатно кредитни консултации. Работим с Credit Navigator - регистрирани в БНБ като независим банков консултант.
За още оферти посетете сайта ни: tbsestates.bg или се обадете на 0878878386.
Водещ брокер: Красимир Попов
Детайли
-
№ на имота 1994
-
Цена 1,400,000€
-
Квадратура 427 m²
-
Двор 233 m²
-
Спални 6
-
Стаи 9
-
Год. на строеж 2025
-
Вид обява Продава
-
Тип имот Къща
360° Видео Тур
Подобни имоти
Оборище, четиристаен обзаведен апартамент с паркоместа
- 365,000€
- 80 m²
- ID: 2263
Банишора, двустаен апартамент, стилно ремонтиран и обновен
- 225,570€
- 50 m²
- ID: 2338
Оборище, два двустайни апартаменти готови за отдаване или за живеене
- 188,000€
- 40 m²
- ID: 2264
Младост 1А, тристаен в новостроящ се комплекс
- 316,000€
- 126 m²
- ID: 1858
Заяви оглед
Contact me





























































