- 0
- Стая
- 3
- Спални
- 0
- Баня
- 189 m²
- Квадратура
- m²
- Дворна площ
- 2026
- Година на строеж
Описание
Оферта №: 2228
Агенция „Trust Broker Solutions” предлага на Вашето внимание двуетажна къща в комплекс Делта Хил.
ЦЕНАТА Е БЕЗ ДДС!
Къщите се издават на шпакловка и замазка!
ЕТАП НА СТРОИТЕЛСТВО: Проект;
РАЗПРЕДЕЛЕНИЕ:
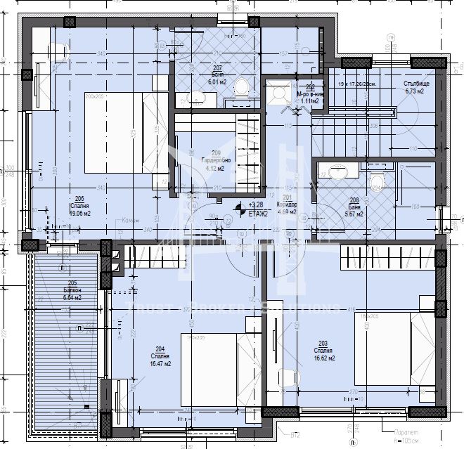
Етаж 1:
✅ Антре - 5.85 м²
✅ Дневна с трапезария - 34.54 м²
✅ Кухня - 15.48 м²
✅ WC - 2.84 м²
✅ Техническо помещение - 2.64 м²
✅ Предверие - 1.33 м²
Етаж 2:
✅ Коридор - 4.69 м²
✅ Мокро помещение - 1.11 м²
✅ Спалня 1 - 16.62 м²
✅ Спалня 2 - 16.47 м²
✅ Балкон - 6.64 м²
✅ Спалня 3 - 19.06 м²
✅ Гардероб - 4.12 м²
✅ Баня с WC 1 - 6.01 м²
✅ Баня с WC 2 - 5.67 м²
ЛОКАЦИЯ:
Намира се в комплекс Делта Хил. Това е затворен жилищен комплекс над с. Кладница, на югозападния склон на Витоша, в община Перник. Разстоянието до град София е 30 минути с кола, и само на 15 минути от град Перник.
✅ Има градски транспорт - автобуси и маршрутки.
✅ Магазин: на 4 минути с кола.
✅ Училище: на 6 минути с кола.
✅ Детска градина: на 10 минути с кола.
СЪСТОЯНИЕ:
Ел. инсталация: Нова
ВиК: Нова
СГРАДА И ВХОД
Контролиран достъп: Да
Саниране: Да
ОСНОВНИ ПАРАМЕТРИ:
✅ Разрешение за ползване (Акт 16) от 2026 г.
✅ Тип строителство: Тухла.
✅ Етажи: 2
✅ Чиста площ: 188.85 м²
✅ Балкони: 1бр. + 6.64 м²
✅ Отопление: Ток (термопомпа/ подово отопление) Цената включва инсталацията на подовото отопление, но ЦЕНАТА НЕ ВКЛЮЧВА вътрешното и външното тяло на термопомпата!
✅ Паркиране: Паркомясто пред имота.
Агенция „Trust Broker Solutions” предлага напълно безплатно кредитни консултации. Работим с Credit Navigator - регистрирани в БНБ като независим банков консултант.
За още оферти посетете сайта ни: tbsestates.bg или се обадете на 0878878386 (в работно време) и по всяко време на 0875364181.
Водещ брокер: Емануела Николова
Детайли
-
№ на имота 2228
-
Цена 385,254€
-
Квадратура 189 m²
-
Спални 3
-
Год. на строеж 2026
-
Вид обява Продава
-
Тип имот Къща
Подобни имоти
Ботунец, двустаен апартамент с гледка към язовир
- 55,000€
- 49 m²
- ID: 2058
Хаджи Димитър, 4-стаен апартамент в новострояща се сграда. До метро
- 343,000€
- 137 m²
- ID: 2392
Банкя, Св. Стефан, празен парцел в регулация.
- 90,000€
- 958 m²
- ID: 2368
Витоша, двустаен апартамент в сграда с акт 16
- 220,000€
- 65 m²
- ID: 2356
Заяви оглед
Contact me



