в-з Малинова долина, Камбаните, къщи в затворен комплекс със собствен двор
- 518,834€
- 4
- Стаи
- 3
- Спални
- 0
- Баня
- 156 m²
- Квадратура
- 516 m²
- Дворна площ
- 2027
- Година на строеж
Описание
Оферта №: 2162
Имотът се продава без комисионна от купувача.
Агенция „Trust Broker Solutions” предлага на Вашето внимание луксозен жилищен комплекс от затворен тип, състоящ се от 80 къщи със собствен двор и 4 блока с апартаменти. Разположени сред живописния район Камбаните, съчетаващ комфорт, функционалност и висок стандарт. Бърз достъп до ключови булеварди, търговски и бизнес зони. Разположен на тридесет минути път с кола от центъра на София.
Схеми на плащане:
Вариант 1:
На предварителен договор - 20%;
На Акт 14 - 80%;
Вариант 2:
На предварителен договор - 20%;
На Акт 14 - 70% (на изплащане за 14 месеца, на всеки по 5%);
На Акт 16 - 10%;
Вариант 3:
На предварителен договор - 30%;
На Акт 14 - 60%;
На Акт 16 - 10%;
Вариант 4:
На предварителен договор - 20%;
На Акт 16 - 80%;
(10% оскъпяване)
РАЗПРЕДЕЛЕНИЕ:
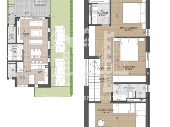
Къщите се състоят от:
Приземен етаж: всекидневна с кухня и трапезария, WC, техническо помещение, градински склад и веранда;
Втори етаж: 3 спални, като едната е master bedroom, 2 бани с тоалетна и балкон.
ЛОКАЦИЯ:
Намира се в район на в-з Малинова долина, Камбаните. В Близост: Спирки на градски транспорт (автобуси № 69; 70; 314); Детски градини и училища. Локацията осигурява възможност за бърза връзка с града, на няколко минуте има достъп до Околовръстен път.
СЪСТОЯНИЕ:
Цялостната концепция на коплексът е създадена да предложи най-високо качество на изпълнение с енергоспестяващи стоителни материали. Коплексът е само с ниско строителство, 80 къщи на 2 и 3 нива и 4 жилищни сгради на три етажа с малък брой апартаменти. Имотите са с личен двор или тераса, осигуряващо допълнително място за отдих и лично пространство. Всички имоти се предлагат както по БДС, така и в завършен вид, съобразен с желанието на клиента. Комплексът е ниска плътност на застрояване - под 20%, над 50% озеленен засаседи са дървета и друга зеленина. Има контролиран достъп и видеонаблюдение. Професионална поддръжка на всички зони. Разнообразни изложения ориентирани както към града, така и към планината. В коплекса са изградени детска зона за игра, алеи за бягане и площадка за спорт. Има и зони за разхождане на домашни любимци. Комплексът е така изграден, че да предлага максимално светлина и продължително слънцегреене. Сградите са шумоизолирани, за да предлагат максимален комфорт, както и има по-малко споделени стени. Имотите разполагат с личен гараж или паркомясто. В строителството са вложени първокачествени материали и техники. Всяка къща разполага с различна големина на двора.
ПЛЮСОВЕ:
✅ Ниска плътност на застрояване - под 20%;
✅ Контролиран достъп и видео наблюдение;
✅ Детска зона за игра и алеи за бягане;
✅ Спокойна среда и чист въздух;
✅ Висок клас строителство и материали;
АКЦЕНТИ:
✅ Ниско строителство;
✅ Луксозен жилищен комплекс;
✅ Къщи със собствен двор;
✅ Всяка къща разполага с различна големина на двора;
✅ Без комисионна от купувача;
ДОПЪЛНИТЕЛНА ИНФОРМАЦИЯ:
✅ Разрешение за ползване (Акт 16) от 2027г.
✅ Вид строителство: тухла
✅ Етажи: 2;
✅ Площ: РЗП 156м2, двор 405м2 ;
✅ Отопление: термопомпа - подово;
Агенция „Trust Broker Solutions” предлага напълно безплатно кредитни консултации. Работим с Credit Navigator - регистрирани в БНБ като независим банков консултант.
За още оферти посетете сайта ни: tbsestates.bg или се обадете на 0878878386.
Водещ брокер: Александра Александрова
Детайли
-
№ на имота 2162
-
Цена 518,834€
-
Квадратура 156 m²
-
Двор 516 m²
-
Спални 3
-
Стаи 4
-
Год. на строеж 2027
-
Вид обява Продава
-
Тип имот Къща
Подобни имоти
Оборище, четиристаен обзаведен апартамент с паркоместа
- 365,000€
- 80 m²
- ID: 2263
Банишора, двустаен апартамент, стилно ремонтиран и обновен
- 225,570€
- 50 m²
- ID: 2338
Оборище, два двустайни апартаменти готови за отдаване или за живеене
- 188,000€
- 40 m²
- ID: 2264
Младост 1А, тристаен в новостроящ се комплекс
- 316,000€
- 126 m²
- ID: 1858
Заяви оглед
Contact me






